幸区南加瀬
新築一戸建て
閲覧済み
南加瀬5丁目 新川崎駅 バス 10分 「南加瀬交番前」 停歩 2分 4980万円
- おすすめ
- NEW
- 価格変更
- 会員限定
所在地
神奈川県川崎市幸区南加瀬5丁目交通
横須賀線 新川崎駅 バス 10分 「南加瀬交番前」 停歩 2分間取り
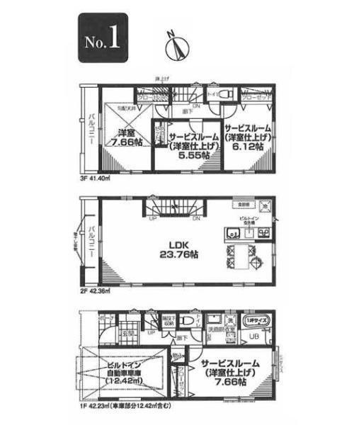
2LDK+S(納戸)(2SLDK)築年月
2025年05月完成建物面積
125.99㎡(38.11坪)土地面積
64.43㎡(19.49坪)
- 外観

- 間取図/区画図
南加瀬5丁目 新川崎駅 バス 10分 「南加瀬交番前」 停歩 2分 4980万円
所在地
神奈川県川崎市幸区南加瀬5丁目交通
横須賀線 新川崎駅 バス 10分 「南加瀬交番前」 停歩 2分間取り
2LDK+S(納戸)(2SLDK)築年月
2025年05月完成建物面積
125.99㎡(38.11坪)土地面積
64.43㎡(19.49坪)| 物件名称 | 幸区南加瀬 |
|---|---|
| 価格 | 4980万円 |
| 権利金/保証金 | なし/なし |
| 所在地 | 神奈川県川崎市幸区南加瀬5丁目 |
| 交通 | 横須賀線 新川崎駅 バス 10分 「南加瀬交番前」 停歩 2分 |
| 間取り | 2LDK+S(納戸)(2SLDK) |
| 建物面積 | 125.99㎡(38.11坪) |
| 土地面積 | 64.43㎡(19.49坪)[公簿] |
| 地目 | 宅地 |
| 土地権利 | 所有権 |
| 築年月 | 2025年05月完成 |
| 建物構造 | 木造(W) |
| 建物階建 | 3階建 |
| 建築確認番号 | 第SJK-KX246010790号 |
|---|---|
| 設備・条件 | ガス:都市ガス汚水:公共下水(使用可)雑排水:公共下水(使用可)水道:公営水道(使用可) |
| 都市計画 | 市街化区域 |
| 用途地域 | 第一種住居地域 |
| 建ぺい率/容積率 | 60%/200% |
| 国土法の届出 | 不要 |
| セットバック | なし |
| 私道負担 | なし |
| 接道状況 | 一方 西:幅員8.63m公道 |
| 引渡時期 | 相談 |
| 物件情報更新日 | 2025年10月28日(物件情報更新日より14日以内に更新) |
| 物件コード | 210651 |
| 取引態様 | 仲介 |
この物件のお問い合わせ先
センチュリー21ウィルハウス新城
お電話でのお問い合わせ
0120-172-776
〒211-0044
神奈川県川崎市中原区新城3丁目1-4 K&Tウィルハウスビル1・2F
- [ TEL ]
- 044-753-2727
- [ FAX ]
- 044-753-2728
- [ 営業時間 ]
- 10:30~18:30
- [ 定休日 ]
- 毎週火・水曜日
- [ アクセス ]
- 南武線 武蔵新城駅南口徒歩1分
アイモール商店街入ってすぐ
- 一部、完成後1年以上を経過した未入居物件が新築物件として掲載される場合がございます。
- 敷地権利が定期借地権のものは価格に権利金を含みます。
- 完成予想図はいずれも外構、植栽、外観等実際のものとは多少異なる場合がございます。
- CG合成の画像の場合、実際とは多少異なる場合がございます。
- 図面と現況が異なる場合には現況を優先いたします。
- 地積、建物床面積、仕様に変更が生じる場合がございます。
- 物件情報は最新のものをご提供させていただきますが、万一売約済の場合はご容赦ください。
- 建築条件付土地の販売は、売買契約後一定期間内に売主との間で建築請負契約を結ぶことが条件となり、この期間内に建築請負契約が成立しない場合は、受領金を全額返済した上で土地売買契約は白紙となります。
- 掲載物件の取引態様が「仲介」「一般」「専属」「専任」となっているものは、ご成約の際に規定の手数料及びそれに係わる消費税を別途申し受けます。
- 間取り表示のSはサービスルーム(納戸)の略称です。WICはウォークインクローゼット、DENは書斎の略称です。
- 参考プランは、土地の購入者の設計プランの参考に資するための一例であって、参考プランを採用するか否かは土地購入者の自由な判断に委ねられます。



